
GRONO - Business Centre
location: Bucha, Ukraine
typology: Mixed-Use (Office, Retail, Cafe, Public space)
floor area: 3305 sq. m.
phase: Concept, Detailed Design
project year: 2023-2025
client: ZAHRAVA GROUP
status: Built in 2025
nomination:
- Architecture MasterPrize (AMP) 2025 – Honorable Mention in the Architectural Design
- EU Prize for Contemporary Architecture
–
Mies van der Rohe Awards 2026
– Nominee
project team: Tetiana Boiko, Bohdan Rokhmaniiko, Anton Herasymovych
visualisation: DVAPP Studio
GRONO is a multifunctional mixed-use complex designed as a safe and flexible environment for work, commerce, and gathering. Located in Bucha — a city that endured destruction and occupation during the full-scale war — the complex offers an architectural response to the need for restored human dignity, spatial support for the community, and sustainable everyday life.
The primary concept behind the architecture is to create a protected space for the community, where office spaces, retail, and the garden converge in an open and human-centered environment. The spatial composition is based on an archipelago of separate volumes arranged around an inviting courtyard — a place for meeting, calm, and interaction. This courtyard is not only a resting area but also a symbol of the collective return to life after experiencing destruction, loss, and isolation.
The project was developed by a team that personally experienced the war and therefore aimed to create architecture that not only functions but also heals — through light, materials, tactility, and openness to change.
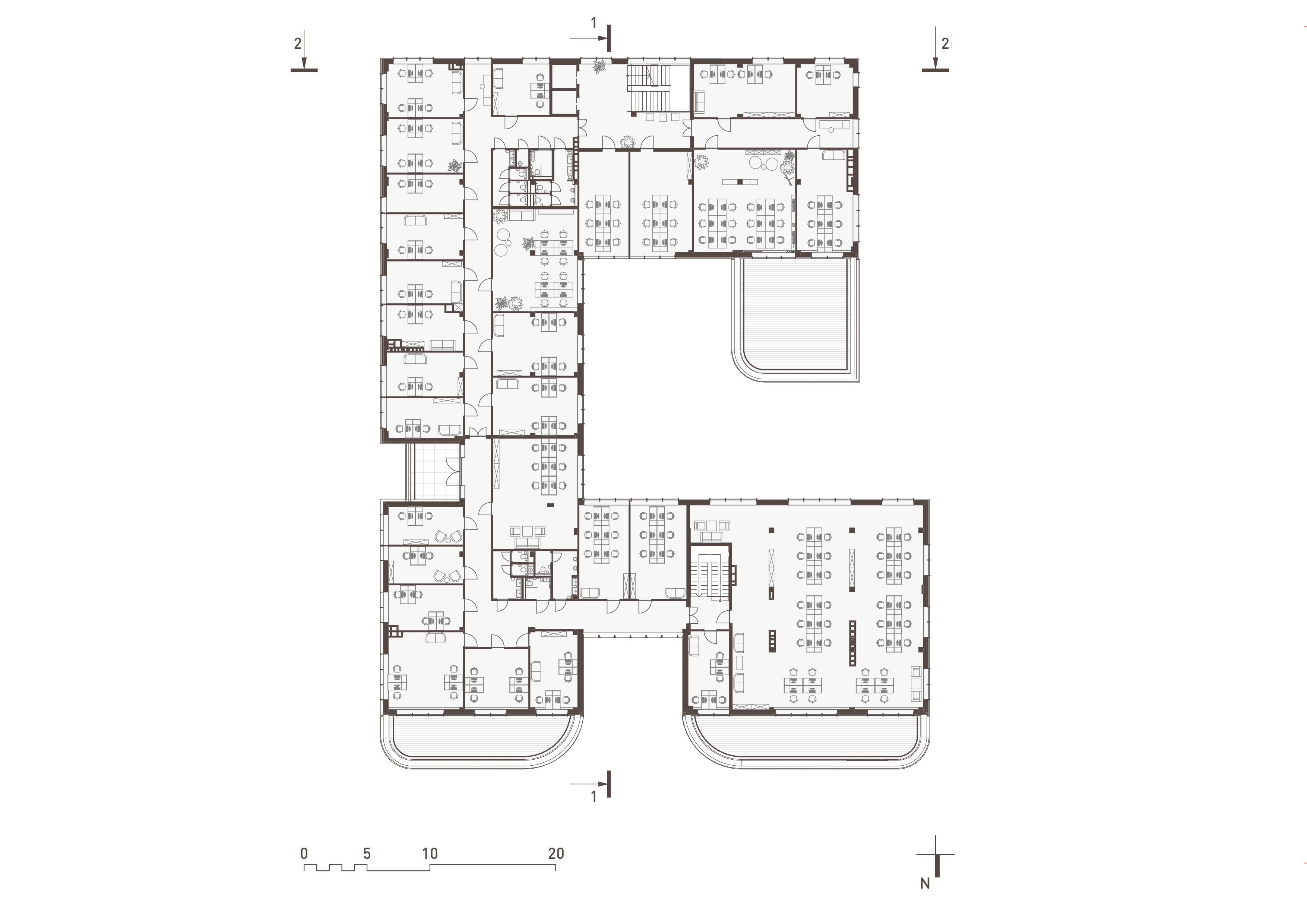
Each building volume has additional functional autonomy, allowing for flexible use during times of crisis or transition. The second floor connects the volumes into a coherent composition, while the ground floor remains open to pedestrians, landscaping, restaurants, and showrooms.
The public spaces, such as the garden, terraces, and exterior galleries, create a layered system of interaction. This is architecture that allows one to be together or alone, but always in safety.
The spatial organization responds to climatic, energy, and psychological challenges. Solid façades face south to protect from overheating; transparent ones face north for even daylight. Passages between the volumes support natural ventilation, while landscaping greenery acts as a natural microclimate regulator.
The basement serves dual functions — for service usage and as a shelter during air alerts. Barrier-free landscaping and inclusive technical solutions ensure equal access for people with different needs.
The upper façades are clad in Swiss Pearl fiber cement panels, which subtly change texture over time — creating a sense of temporal presence. The ground floor is faced with deeply textured brick, visually and tactilely “grounding” the building and making it relatable at the level of human touch.
Lightweight transparent structures minimize the boundary between inside and outside — essential in a city environment, slowly healing from rupture.
GRONO represents a new type of urban space for Bucha, where work, leisure, psychological safety, and community together shape a new quality of life.
masterplan

floorplans
sections
Visualisation by ©DVAPP Studio
TERRACES
Praesent a est odio. Integer ex mauris, ullamcorper varius tristique a, aliquam vitae ipsum. Proin lacus odio, pretium sit amet nunc eget, facilisis sagittis ante.
Maecenas blandit mauris ipsum, sit amet sodales arcu auctor in. Aenean gravida fringilla vulputate. Etiam sed nunc erat. Quisque eget augue hendrerit, bibendum ipsum vel, venenatis lectus.
Nunc rutrum, leo et tincidunt auctor, dolor mauris rutrum nisl, nec dignissim libero nibh vitae nisi. Phasellus eleifend neque quis lorem ultricies commodo. Mauris commodo lorem enim, eget ullamcorper velit pharetra varius. Integer blandit elementum nisi at hendrerit.
facade
t pretium. Vestibulum vitae purus est. Pellentesque nisl mi, ultricies eu sagittis a, dapibus eget nunc. Nam nunc libero, fringilla id enim lacinia, bibendum tincidunt dolor. Sed et orci feugiat, mattis est ac, fringilla enim. Donec sagittis in dui at cursus. Proin in leo vitae felis condimentum laoreet.
@brokhm
LANDSCAPING
Praesent a est odio. Integer ex mauris, ullamcorper varius tristique a, aliquam vitae ipsum. Proin lacus odio, pretium sit amet nunc eget, facilisis sagittis ante.
Maecenas blandit mauris ipsum, sit amet sodales arcu auctor in. Aenean gravida fringilla vulputate. Etiam sed nunc erat.Quisque eget augue hendrerit, bibendum ipsum vel, venenatis lectus.
Photos
















Photos by ©Max Ulanov